НАЗНАЧЕНИЕ И УСТРОЙСТВО КОЛЕСНОЙ ПАРЫ

В данную страницу сайта мы внесли значительные изменения по замечаниям Алексея Николаевича Дывыдова. Они связаны, прежде всего с ГОСТ 4835-2006, который устанавливает новые типы и размеры колесных пар. Обращаем внимание читателей, что согласно этому ГОСТу оси РУ1 (с резьбой и корончатой гайкой) больше не выпускаются, а диаметр колеса по кругу катания не 950 мм, как было раньше, а 957 мм.


Колёсные пары относятся к ходовым частям и являются одним из ответственных элементов вагона. Они предназначены для направления движения вагона по рельсовому пути и восприятия всех нагрузок, передающихся от вагона на рельсы при их вращении. Работая в сложных условиях нагружения, колёсные пары должны обеспечивать высокую надёжность, так как от них во многом зависит безопасность движения поездов. Поэтому к ним предъявляют особые, повышенные требования Госстандарта, Правила технической эксплуатации железных дорог, Инструкция по освидетельствованию, ремонту и формированию вагонных колёсных пар, а также другие нормативные документы при проектировании, изготовлении и содержании. Конструкция и техническое состояние колёсных пар оказывают влияние на плавность хода, величину сил, возникающих при взаимодействии вагона и пути, и сопротивление движению.

Колесная пара

Работая в современных режимах эксплуатации железных дорог и экстремальных условиях окружающей среды, колёсная пара вагона должна удовлетворять следующим основным требованиям: обладать достаточной прочностью, имея при этом минимальную необрессоренную массу с целью снижения тары подвижного состава и уменьшения непосредственного воздействия на рельсовый путь и элементы вагона при прохождении неровностей рельсовой колеи; обладать некоторой упругостью, обеспечивающей снижение уровня шума и смягчение толчков, возникающих при движении вагона по рельсовому пути; совместно с буксовыми узлами обеспечивать, возможно, меньшее сопротивление при движении вагона и возможно большее сопротивление износу элементов, подвергающихся изнашиванию в эксплуатации.

КЛАССИФИКАЦИЯ КОЛЕСНЫХ ПАР. СОВЕРШЕНСТВОВАНИЕ ИХ КОНСТРУКЦИЙ

Колёсная пара (рис. 1) состоит из оси 1 и двух укрепленных на ней колёс 2. Типы, основные размеры и технические условия на изготовление вагонных колёсных пар определены Государственными стандартами, а содержание и ремонт «Правилами технической эксплуатации железных дорог» (ПТЭ) и «Инструкция по осмотру, освидетельствованию, ремонту и формированию вагонных колесных пар ЦВ/3429», а также другими нормативными документами при проектировании, изготовлении и содержании. Конструкция и техническое состояние колёсных пар оказывают влияние на плавность хода, величину сил, возникающих при взаимодействии вагона и пути, и сопротивление движению.

Тип колёсной пары определяется типом оси и диаметром колес (табл. 1).Согласно ГОСТ 4835-2006 устанавливают пять типов колесных пар с осями типов РУ1Ш и РВ2Ш и колесами диаметром по кругу катания 957 мм в зависимости от типа вагона и максимальной расчетной статической нагрузки от колесной пары на рельсы (таблица 1).

Таблица 1
Типы колесных пар вагонов

Тип колесной пары

Тип вагона

Конструкционная скорость вагона, км/час

Мксимальная расчетная статистическая нагрузка от колесной пары на рельсы, кН (тс)

РУ1Ш-957-Г
Грузовой
120
230,5 (23,5)

РУ1Ш-957-П

Пассажирский

160

176,6 (18,0)

РУ1Ш-957-Э
Немоторный электропоезда
130
186,4 (19,0)
РУ1Ш-957-Д
Немоторный дизель-поезда

РВ2Ш-957-Г

Грузовой

1200

245,2 (25,0)

Пример условного обозначения колесной пары для грузового вагона с осью типа РУ1Ш и колесами диаметром 957 мм с буксовыми узлами:

Колесная пара РУ1Ш-957-Г ГОСТ 4835-2006

То же, без буксовых узлов:

Колесная пара РУ1Ш-957 без буксовых узлов ГОСТ 4835-2006

            В настоящее время из ГОСТ 4835-2006 исключены оси РУ1 с торцевым креплением гайкой М110 и большинство заводов прекратило выпуск осей данного типа. Колесные пары РУ1-950 и РУ1Ш-950 еще можно встретить в эксплуатации.

Диаметры шеек 3, (рис. 1), подступичной 5 и средней 6 частей оси определяют исходя из расчётной нагрузки. Предподступичная часть 4 является ступенью перехода от шейки к подступичной части оси и служит для установки уплотняющих устройств корпуса буксы. На nодступичных частях 5 прочно закрепляются колёса 2. На шейках 3 размещаются подшипники.

Колесная пара

Рис. 1. Колесная пара и форма шейки оси: 1 - ось; 2 - колесо; 3 - шейка; 4 - предподступичная часть;
5 - подступичная часть; 6 - средняя часть; 7 - нарезная часть

Колёсные пары с осями, предназначенными для эксплуатации с роликовыми подшипниками, различают между собой конструкцией торцового крепления внутренних колец роликовых подшипников на шейке:

  • с нарезной частью 7 для навинчивания корончатой гайки (ось РУ1);
  •  при помощи приставной шайбы, для чего на торцах делают отверстия с нарезкой для болтов крепления (ось РУ1Ш рис. 1). Такое крепление выполнено в двух вариантах: тремя или четырьмя болтами.

Большое внимание прочности и надёжности колёсных пар уделялось при создании первых вагонов. Нормальная ось до 1892 г. выпуска имела диаметры шеек, подступичных и средней частей соответственно 100, 135 и 126 мм. В связи с увеличением грузоподъёмности и тары вагонов, а также скорости движения поездов возрастали нагрузки, действующие на колёсные пары, что требовало усиления их элементов. В результате возрастали диаметры осей, совершенствовались конструкции колёс и повышалась прочность посадки их на ось.
В дореволюционной России колёсные пары оснащали составными (бандажными) колёсами, состоящими из колёсного центра, бандажа и укрепляющих его элементов. До 1892 г. применяли колёса, центры которых были деревянными (рис. 2) (колеса Мензеля). Их изготовляли из дерева твёрдых пород. В колёсном центре помещали деревянный диск 2, состоявший из 16 секторов тикового дерева. Он находился между бандажом 1 и ступицей 3, был скреплён с ними при помощи колец 4 и 5, стянутых болтами 6.

Деревянные колеса Мензеля

Рис.2 Колесо с деревянным центром

Как отмечалось, в те времена такие колёса обладали бесшумным и сравнительно спокойным ходом, смягчали вертикальные толчки. Однако вследствие усушки дерева в процессе эксплуатации болты ослабевали, что нарушало безопасность движения поездов и приводило к необходимости постоянного наблюдения за состоянием крепления.
Поэтому колёса с деревянными центрами (колёса Мензеля) изъяли из эксплуатации. До 1900 г. распространение получили кованые центры, затем литые спицевые, дисковые стальные и чугунные. В 1948 г. изготовление чугунных центров было прекращено вследствие большой массы, малой прочности и частых повреждений при формировании колёсных пар. Прекратилось также изготовление спицевых центров из-за неравномерной жёсткости обода и ослабления соединения с бандажом, завихрения воздуха. Завихрение воздуха вызывало попадание песка на трущиеся поверхности ходовых частей и повышенный износ и задиры металла.
В 1931 г. был совершен переход от бандажных колёс к более совершенным безбандажным, который завершился в 70-х годах. В 1953 г. было также прекращено производство чугунных колёс, поскольку на них часто появлялись выщербины, раковины и отколы, угрожавшие безопасности движения поездов и сокращавшие срок их службы. Более надёжными в эксплуатации зарекомендовали себя стальные литые. С 1935 г. было организовано производство цельнокатаных колёс, обладающих существенными преимуществами перед литыми. С годами цельнокатаные колёса совершенствовались, и они получили широкое распространение.

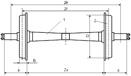
Для безопасного движения вагона по рельсовому пути на ось 1 прочно закрепляются колёса 2 (рис. 3) с соблюдением строго определённых размеров. Расстояние между внутренними гранями колёс 2s составляет: для новых колёсных пар, предназначенных для вагонов, обращающихся со скоростями до 120 км/ч – (1440±3), свыше 120, но не более 160 км/ч – (1440) мм. Номинальное расстояние между кругами катания колес 2l равно 1580 мм, а между серединами шеек 2b – 2036 мм.

Размеры колесной пары

Рис.3. Основные размеры колесной пары

Во избежание неравномерной передачи нагрузки на колёса и рельсы разность размеров k от торца оси до внутренней грани обода допускается не более 3 мм. Колёса, укреплённые на одной оси, не должны иметь разность диаметров D более 1 мм, что предотвращает односторонний износ гребней и не допускает повышения сопротивления движению. Чтобы снизить инерционные усилия, колесные пары скоростных вагонов подвергают динамической балансировке: для скоростей 140...160 км/ч допускается дисбаланс не более 6 Нм; для скоростей 160...200 км/ч - не более 3 Нм. Номинальная ширина обода колес всех типов колесных пар составляет 130 мм.
Кроме колёсных пар, изготавливаемых в соответствии ГОСТ 4835-80, поставляют также конструкции, выполненные по специальным чертежам и техническим условиям, для вагонов промышленного транспорта, вагонов электро- и дизель- поездов, а также с раздвижными на оси колёсами для эксплуатации на дорогах с различной шириной колеи и др. В вагонах, оснащённых дисковыми тормозами, на оси 1 (рис. 4), кроме двух колёс 2, прочно укреплены диски 3.

Колесная пара с дисковыми тормозами

Рис.4 Колесная пара с тормозными дисками (3)

Колёсная пара моторного вагона электропоезда (рис. 5) состоит из оси 5 и двух бандажных колёс 6 с литыми спицевыми колесными центрами 2 и бандажами 1. Один колёсный центр имеет удлинённый фланец 7, к которому прецизионными болтами крепится фланец зубчатого колеса 3 редуктора. Редуктор устанавливается на подшипнико-редукторном узле 4. Колёсные пары вагонов промышленного транспорта, предназначенные для эксплуатации с повышенными нагрузками, имеют увеличенные диаметры, в частности, диаметр шеек составляет 180 мм.

Колесная пара для вагона электропоезда

Рис. 5. Колёсная пара моторного вагона электропоезда: 1 - бандаж;
2 - спицевой центр; 3 - зубчатое колесо; 4 - подшипнико-редукторный
узел; 5 - ось; 6 - бандажное колесо; 7 - фланец

Колёсные пары с раздвижными колёсами на оси имеют более сложную конструкцию. На Брянском машиностроительном заводе в 1957 г. была создана колёсная пара с раздвижными на оси колёсами (рис. 6). Передвижение колёс из одного положения в другое происходит автоматически при движении вагона по специальному переводному стенду, соединённому одним концом с колеёй 1520 мм, а вторым – с колеёй 1435 мм. Раздвижная колёсная пара состоит из оси 2, вдоль которой могут перемещаться колёса 1 при переходе вагона с колеи одной ширины на колею другой ширины.

Колесная пара с раздвижными колесами

Рис. 6. Колесная пара с раздвижными на оси колесами для подвижного состава, обращающегося по дорогам колеи 1520 и 1435 мм без замены ходовых частей: 1 - колесо; 2 - ось;
3 - втулка; 4 - кольцо замковое; 5 - барабан; 6 - буфер;
7 - крышка; 8 - пружина

Для обеспечения скольжения между ступицей колеса 1 и подступичной частью оси 2 установлена капроновая втулка 3. На наружной поверхности ступицы имеются две кольцевые выточки для закрепления колеса на оси посредством секторов 9. В одну выточку секторы входят тогда, когда колесо находится в колее 1520 мм, а во вторую ? в колее 1435 мм. Такое положение секторов фиксируется барабаном 5, укреплённым на оси посредством горячей посадки. Для предупреждения самопроизвольного выхода секторов из кольцевых выточек ступицы предусмотрено замковое кольцо 4, прикреплённое болтами к буферу 6. Внутри буфера расположены пружины 8, опирающиеся на крышку 7 и отжимающие буфер и замковое кольцо к середине оси. Повороту колеса на оси препятствует зубчатое зацепление барабана и ступицы колеса.
Раздвижная колёсная пара приводится в действие следующим образом. При прохождении вагона по переводному стенду специальным упором отжимается буфер 6, в результате чего замковые кольца 4 перемещаются в сторону колёс и перестают удерживать сектора 9 в выточках ступицы. Затем упор стенда, нажимая на колёса 1, передвигает их вдоль оси 2 в необходимое положение. В начале этого передвижения колёса выжимают сектора 9 из кольцевых выточек, в конце передвижения колёс сектора оказываются напротив вторых выточек. Одновременно они освобождаются от нажатия буфера 6 и под действием пружин 8 возвращаются вместе с замковыми кольцами 4 в исходное положение. При этом кольца 4 нажимают на сектора 9, в результате чего сектора входят во вторые выточки, закрепляя колеса в изменённом положении.
Один из вариантов конструкции колёсной пары с раздвижными колёсами был разработан специалистами Уралвaгoнзавода и ВНИИЖТа.
Конструкции с раздвижными колёсами отличаются от обычных колёсных пар более сложным устройством, увеличенной массой и стоимостью изготовления. Однако технико-экономические расчёты показывают, что при перевозке некоторых грузов раздвижные колёсные пары, несмотря на перечисленные выше недостатки, включая дополнительные затраты на ремонт и содержание, позволяют сократить капитальные вложения и эксплуатационные расходы по сравнению с затратами, необходимыми для организации и производства перегрузочных работ на пограничных станциях. Бесперегpузочное сообщение обеспечивает также сокращение потерь грузов и ускорение их доставки потребителю, что имеет важное значение особенно для скоропортящихся грузов.
Колёсные пары узкоколейных вагонов отличаются большой разнотипностью. Например, колёсных пар колеи 750 мм насчитывалось 42 типа, из которых 30 имели буртики на концах шеек и 12 без буртиков, 14 размеров по диаметру колёс – от 450 до 650 мм. Колёса были бандажными с чугунными или стальными (дисковыми или спицевыми) колёсными центрами, а также безбандажными – чугунными и стальными цельнокатаными. На рис. 7 показана колёсная пара без буртиков на шейках оси, применяемая в вагонах узкоколейных железных дорог, которые были оборудованы буксами, не имевшими подшипников. На оси 1 слева приведен разрез бандажного колеса с дисковым центром 2, на который прочно надет бандаж 4, укрепленный от сдвига предохранительным кольцом 3, а справа безбандажное колесо 5. В 1955 г. Главное управление вагонного хозяйства МПС провело унификацию колёсных пар вагонов колеи 750 мм, благодаря которой резко уменьшилась их разнотипность.

Колесная пара для узкоколейных вагонов

Рис. 7. Колёсная пара без буртиков на шейке оси узкоколейных вагонов колеи 750 мм: 1 - ось; 2 - центр дисковый; 3 - кольцо предохранительное; 4 - бандаж; 5 - колесо цельнокатаное

В начало страницы
Назад <<< >>> Вперед

Осмотр вагонов

Холодильные установки вагонов

Быков Ремонт вагонов

Болотин Проводник пассажирских ванов

Гридюшко Вагонное хозяйство

Системы автоматизации ремонта вагонов

Коломийченко автосцепка