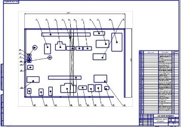
ВНИМАНИЕ!
ВСЕ ЧЕРТЕЖИ,
ВЫЛОЖЕННЫЕ
НА НАШЕМ САЙТЕ, ОТКРЫВАЮТСЯ
И МОГУТ БЫТЬ
ОТРЕДАКТИРОВАНЫ
В ПРОГРАММЕ
"КОМПАС 3D V15"
Ссылки для
скачивания:
64-битная версия
32-битная версия
ЭТО ПОРТАТИВНЫЙ ВАРИАНТ;
ОН НЕ ТРЕБУЕТ
УСТАНОВКИ,
ОТКРЫВАЕТСЯ СРАЗУ
ИЗ ПАПКИ Bin
ФАЙЛ KOMPAS.exe
МОЖНО СКАЧАТЬ БЕСПЛАТНУЮ ЛИЦЕНЗИОННУЮ
ВЕРСИЮ С САЙТА АСКОН; НАШИ ЧЕРТЕЖИ С ЕЁ ПОМОЩЬЮ ТОЖЕ МОГУТ БЫТЬ ОТКРЫТЫ, ОТРЕДАКТИРОВАНЫ, ВЫВЕДЕНЫ НА ПЕЧАТЬ



