|

ТЕМА 5.2 УСТРОЙСТВО И РЕМОНТ ПЕРЕХОДНЫХ И СГЛАЖИВАЮЩИХ РЕАКТОРОВ
1 Назначение и устройство реакторов
1.1 Общие сведения о переходных и сглаживающих реакторах
Реактором называют электрическую катушку, индуктивное сопротивление которой значительно по сравнению с индуктивным сопротивлением остальной электрической цепи. Для того чтобы индуктивность реактора была наибольшей, его обмотку располагают на сердечнике из ферромагнитного материала, т. е. материала, обладающего высокой магнитной проницаемостью. Таким материалом является, например, листовая электротехническая сталь. Индуктивность реактора, сердечник которого выполнен из ферромагнитного материала, не является постоянной, а зависит от тока в его обмотке. Это объясняется тем, что индуктивность изменяется прямо пропорционально магнитной проницаемости. В свою очередь магнитная проницаемость зависит от магнитной индукции. Если в обмотке реактора ток возрастает, то одновременно возрастает и магнитная индукция, что вызывает уменьшение магнитной проницаемости, а следовательно, и уменьшение индуктивности. При уменьшении тока в обмотке реактора индуктивность его увеличивается. Это свойство реактора с ферромагнитным сердечником использовано в силовых цепях электровозов для сглаживания пульсаций выпрямленного тока.
Известно, что пульсация выпрямленного тока зависит от тягового тока: чем больше ток, тем меньше пульсация, и наоборот. Между тем для нормальной коммутации тяговых двигателей необходимо, чтобы пульсация в любом режиме работы двигателя оставалась постоянной. Для этого в цепь тока включают реактивные катушки, индуктивность которых наибольшая при малых тяговых токах и наименьшая при больших.
Реактор, включенный последовательно в цепь тяговых двигателей для уменьшения пульсации выпрямленного тока, называют сглаживающим. Такие реакторы применяют на всех электровозах переменного тока. На электровозах ВЛ80т устанавливают четыре сглаживающих реактора типа РС-53. Начальная индуктивность такого реактора составляет 6 мГн, а при номинальном токе часового режима 1850 А уменьшается до 4 мГн. Длительный ток реактора 1700 А; корпусная изоляция рассчитана на напряжение 1500 В; масса реактора 800 кг.
Для интенсивного охлаждения реактора применяется принудительная вентиляция с объемом воздуха 95 м3/мин, проходящего по кожухам, выполненным из стеклопласта. Реактор крепится к раме кузова.
На электровозе ВЛ80к устанавливают четыре реактора РС-32. Основные технические данные реакторов такие же, как у реакторов РС-53. Конструкция реактора отличается от описанной отсутствием кожухов, вследствие чего требуется почти вдвое больше охлаждающего воздуха—180 м3/мин.
На электровозах ВЛ60к применяют два реактора типа РЭД-4000 А. Индуктивность реактора 5,6 мГн при номинальном токе 1545 А и 10,5 мГн при токе 300 А. Корпусная изоляция рассчитана на напряжение 3000 В, масса реактора 1570 кг. Охлаждение воздушное, принудительное. Количество расходуемого воздуха 300 м3/мин.
На электровозах с регулированием напряжения на вторичной обмотке трансформатора в цепь ее регулировочной части включают так называемый переходный реактор.
На электровозах ВЛ80т устанавливают переходные реакторы типа ПРА-48, на электровозах ВЛ80к — ПРА-3 и на электровозах ВЛ60к — ПРА-2. Устройство переходных реакторов всех типов и схемы соединения их обмоток одинаковы. Охлаждение реакторов— естественное воздушное. Реакторы размещены один над другим. Этим достигается наилучшее использование места и их взаимной индуктивности.
1.2 Переходной реактор ПРА-48 (электровоз ВЛ80с)
Переходной реактор типа ПРА-48 служит для осуществления перехода с одной позиции ЭКГ на другую без разрыва электрической цепи с током тяговых двигателей, а также является делителем напряжения. Он ограничивает ток короткого замыкания в секции трансформатора до 1200 А. Каждый реактор работает самостоятельно в одном из плеч тяговой вторичной обмотки трансформатора.
Технические характеристики ПРА-48
Номинальное напряжение относительно земли, кВ........................................1500
Номинальное напряжение между выводами, В...............................................146
Часовый ток ветви, А....................................................................................1370
Длительный ток ветви, А...............................................................................1270
Индуктивное сопротивление, Ом....................................................................0,12
Число витков....................................................................................................27
Сечение обмоточного провода, мм2............................................................8 x 60
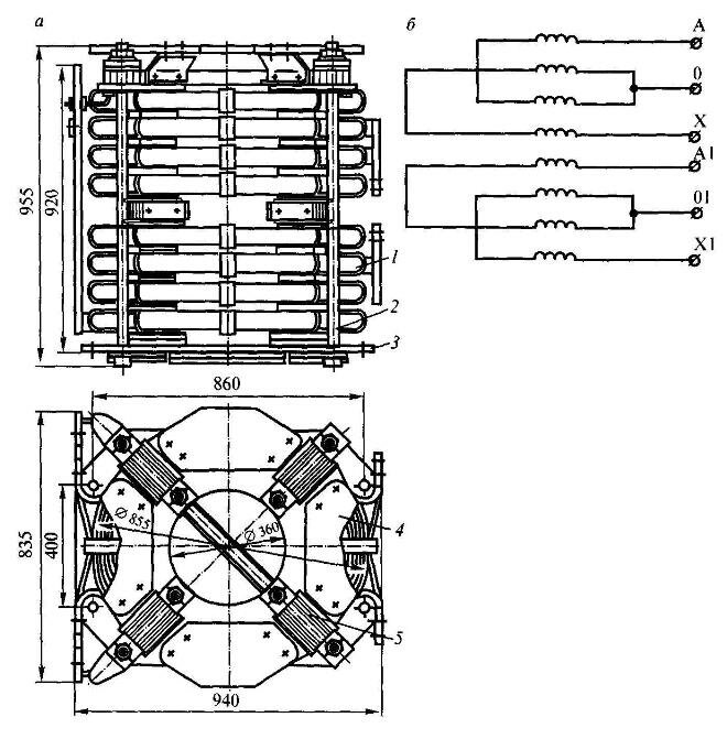
Габаритные размеры реактора, мм................................................835 x 940 x 955
Масса, кг........................................................................................................450
Устройство. Оба переходных реактора (рис. 1) выполнены в одном комплекте без стального сердечника. Каждый переходной реактор состоит из четырех катушек.
Каждая катушка реактора намотана в один слой из двух параллельных алюминиевых шин сечением 8 x 60 мм с зазором между шинами 7 мм в виде спирали и имеет 6,75 витков. По радиусам между витками катушки установлены прокладки из электронита для изоляции, по которым все витки катушки стягиваются бандажами из стеклоленты.

Рисунок 1 - Переходной реактор ПРА-48 (а) и схема его обмоток (б): 1 — спиральные катушки; 2 — стяжные дюралюминиевые шпильки; 3 — основание; 4 — защитные листы; 5 — экранирующие пакеты
При сборке реактора на основании в виде гетинаксовой плиты (толщиной 30 мм) устанавливаются друг на друга четыре катушки нижнего реактора, на них устанавливаются четыре катушки верхнего реактора. Затем все восемь катушек в двух реакторах стягиваются между собой и с основанием при помощи верхних текстолитовых планок и восьми алюминиевых шпилек (М24).

Рисунок 2 - Переходной реактор ПРА-48 (общий вид)
Снизу, сверху и между реакторов укреплены шихтованные пакеты для замыкания по ним переменного магнитного потока катушек реакторов (экранирование), что позволяет уменьшить нагрев крышки трансформатора и основания ЭКГ от действия вихревых токов.
Все четыре катушки каждого реактора соединены между собой последовательно, путем сварки алюминиевых шин. Каждый реактор имеет три вывода: начало, конец и средний вывод «0» между второй и третьей катушками.Переходные реакторы устанавливаются на крышке тягового трансформатора (под ЭКГ). Расстояние между крышкой и основанием реактора должно быть не менее 100 мм. Реактор имеет естественное охлаждение.
Фрагмент работы с оформлением в формате PDF можно посмотреть ЗДЕСЬ
В комплект входит чертеж реакторов на формате А1 в программе "Компас" (формат CDW)

КАК СКАЧАТЬ РАБОТУ ВСЮ ЦЕЛИКОМ ?
Вернуться к списку работ
|