|

ТЕМА 4.5 УСТРОЙСТВО И РЕМОНТ
ГРУППОВЫХ ПЕРЕКЛЮЧАТЕЛЕЙ ПКГ- 4 И ПКГ- 6
1 КРАТКАЯ ХАРАКТЕРИСТИКА ГРУППОВОГО ПЕРЕКЛЮЧАТЕЛЯ
1.1 Назначение
Групповой переключатель - это аппарат, состоящий из нескольких контактных элементов, размыкающих и замыкающих различные участки силовых цепей тяговых двигателей, но имеющих один общий привод. На отечественных электровозах постоянного тока групповые переключатели применяют для переключения тяговых двигателей с одного соединения на другое, где требуется соблюдение строгой последовательности замыкания и размыкания цепей.
Групповые переключатели служат для перегруппировки тяговых двигателей из сериесного соединения в сериесно-параллельное соединение; эту функцию выполняет ПКГ – 4; и из сериесно-параллельного соединения в параллельное; эту функцию выполняет ПКГ – 6. Это значит, что на зажимах тягового двигателя растет номинальное напряжение: 375 В, 750 В, 1500 В.
1.2 Устройство
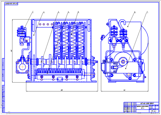
ПКГ-4 и ПКГ-6 состоят из: 1. Каркаса; 2. Кулачкового вала; 3.Контакторных элементов (кэ); 4.Электропневматического привода.

Рис. 1 Групповой переключатель ПКГ-4
Групповой переключатель ПКГ-6 имеет шесть контактных элементов, отделенных один от другого асбестоцементными перегородками; электропневматический привод с кулачковым валом и блокировочное устройство. Каркас сварен из двух боковых и трех уголков: одного верхнего и двух нижних. Каждый контакторный элемент собирает на изолированном стержне, который укрепляют к уголкам каркаса. В верхней части стержня укреплен неподвижного контакта с дугогасительной катушкой и контактом. В нижней части стержня находится кронштейн подвижного контакта с опорой дугогасительной камеры и контактным рычагом. В верхней части контактного рычага шарнирно укреплен держатель подвижного контакта с притирающей пружиной и контактом. Такая конструкция обеспечивает включение контактов с притиранием.

Рис.2 Контакторный элемент
В средней части рычаг имеет ролик с шариковыми подшипниками, который при работе привода катится по наружной поверхности кулачковой шайбы. Нижняя часть рычага имеет удлиненный хвостовик. Кулачковая шайба имеет поверхности малого и большого радиусов с плавными переходами от одной из них к другой. При повороте шайбы и перекатывании ролика с малого на большой радиус шайбы, происходит поворот контактного рычага против часовой стрелки и подъем держателя подвижного контакта. Когда контакты соприкасаются, начнется поворот держателя, сжатие притирающей пружины и притирание контактов через которые замыкается силовая цепь. Если кулачковую шайбу вращать в обратную сторону, то ролик сойдет с выступающей части, контактный рычаг опустится под действием притирающей пружины и собственного веса, размыкая цепь. В случае заедания контактного рычага в верхнем положении, он отключается принудительно. С этой целью около кулачков сделаны выступы, которые при вращении кулачкового вала задевают хвостовые рычаги и опускают его.
1.3 Принцип работы
При подаче сжатого воздуха в одну полость цилиндра, поршень с рейкой перемещается, а кулачковый вал поворачивается в одно из крайних положений Выпуск сжатого воздуха из этой полости и наполнение им второй полости приводят к повороту кулачкового вала во второе крайнее положение. Воздух в каждую полость цилиндра поступает через электромагнитные вентили, один из них, включающего типа, подает воздух в соответствующую полость цилиндра при включении катушки и выпускает воздух в атмосферу при ее отключении. Второй вентиль, включающего типа, подает воздух в полость цилиндра при отключении катушки и выпускает воздух в атмосферу при включении.
Таким образом, если катушки обоих вентилей не подключены под напряжение цепи управления, то сжатый воздух заполняет ту полость цилиндра, которая соединена с вентилем выключающего типа, и контакторные элементы включают тяговые двигатели последовательно-параллельно.
При включении катушек обоих вентилей сжатый воздух во вторую полость через вентиль включающего типа и переключает контакторные элементы в положение параллельного соединения тяговых двигателей.

Рис.3 Общий вид группового переключателя ПКГ-6
С переключением группового переключателя необходимо изменять схему цепей управления другими аппаратами. Для этого установлено блокировочное устройство, состоящее из блокировочного барабана, связанного с кулачковым валом через зубчатую передачу. А поверхности блокировочного барабана укреплены медные и фибровые сегменты, которых касаются блокировочные пальцы, укрепленные на пальце держателе.

Рис.4 Фото группового переключателя ПКГ-6

Рис.5. Соединение пневматического привода с кулачковым валом
Если два пальца касаются медного сегмента - их электрическая цепь замкнута, если они касаются фибрового сегмента - цепь разомкнута Момент включения и выключения контакторных элементов определяется формой кулачковых шайб и их положением на кулачковом валу. При повороте кулачкового вала, перед включением контакторного элемента подвижной контакт некоторое время движется к неподвижному, а после их касания происходит притирание и затем полное включение.
Фрагмент работы с оформлением в формате PDF можно посмотреть ЗДЕСЬ
В комплект входит чертеж ПКГ-4 на формате А1 в программе "Компас" (формат CDW)

КАК СКАЧАТЬ РАБОТУ ВСЮ ЦЕЛИКОМ ?
Вернуться к списку работ
|